294.00 m²
37,41 zł/m2
parter
ROM-LW-4277

11 000 zł

Lokal na wynajem
Oferta na wyłączność

Szczegóły oferty

Symbol oferty ROM-LW-4277
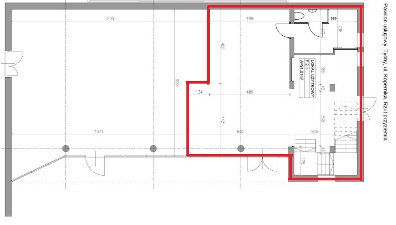
Powierzchnia 294,00 m²
Rodzaj budynku pawilon
Standard
Piętro parter
Liczba pięter w budynku 1
Stan lokalu Do wprowadzenia
Typ kaucji dwumiesięczna
Okna aluminium
Instalacje nowe
Rodzaj lokalu wielopoziomowy
Przeznaczenie lokalu biurowo-magazynowy, biurowy, handlowo-usługowy, handlowy, usługowy
Pomieszczenia
Zygmunt Puk

Zygmunt Puk

Pośrednik nieruchomości
Nr licencji: 11104

Napisz wiadomość 22 Ofert

Opis nieruchomości

Lokal dwupoziomowy o pow. 294 m2. Parter 94 m2 ( stan idealny) + 1 piętro 200m2 (otwarta pow. plus biuro, toaleta pojedyncza oraz toaleta kilkustanowiskowa), połączony schodami wewnętrznymi.  Lokal znajduje się w nowoczesnej zabudowie, stanowiący część pawilonu, jest w bardzo dobrym stanie technicznym. Wyposażony w pomieszczenia socjalne i toalety. Idealny na siedzibę firmy, sklep specjalistyczny, Gabinety lekarskie, szkołę, przedszkole, ekspozycję, gastronomię i każdą nieuciążliwą usługę. Cena 11000 zł netto + opłaty administracyjne + media. Cena do negocjacji w zależności od warunków umowy. Dużo miejsc parkingowych, łatwy podjazd bezpośrednio pod lokal. Duża witryna i doświetlenie, dwa wejścia. Ogrzewanie miejskie (licznik na GJ - niskie opłaty) . Polecam !!!

Lokalizacja nieruchomości

Pośrednik nieruchomości

Proszę wprowadzić poprawne imię i nazwisko
Proszę wprowadzić poprawny numer telefonu
Proszę wprowadzić poprawny adres e-mail
Proszę zaznaczyć wymagane zgody
Rozwiąż równanie:
10 9
Niepoprawny wynik