224.60 m²
30,72 zł/m2
1 piętro
ROM-LW-4113

6 900 zł

Lokal na wynajem
Oferta na wyłączność

Szczegóły oferty

Symbol oferty ROM-LW-4113
Powierzchnia 224,60 m²
Powierzchnia użytkowa [m2] 224,60 m²
Rodzaj budynku pawilon
Standard
Piętro 1
Liczba pięter w budynku 1
Stan lokalu Do wprowadzenia
Typ kaucji dwumiesięczna
Okna aluminium
Instalacje nowe
Rodzaj lokalu wielopoziomowy
Przeznaczenie lokalu biurowo-magazynowy, biurowy, handlowo-usługowy, handlowy, usługowy
Czynsz najmu netto /m2 28 PLN
Zygmunt Puk

Zygmunt Puk

Pośrednik nieruchomości
Nr licencji: 11104

Napisz wiadomość 20 Ofert

Opis nieruchomości

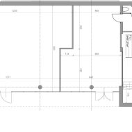
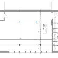
Lokal dwupoziomowy o pow 224,5 m2. Parter 24 m2 (hol) + 1 piętro 200m2, połączony schodami wewnętrznymi. Lokal znajduje się w nowoczesnej zabudowie, stanowiący część pawilonu, jest w bardzo dobrym stanie technicznym. Tuż obok budynku znajduje się działka, na której powstaje nowe osiedle mieszkaniowe. Lokal wyposażony w pomieszczenie socjalne i toalety. Idealny na siedzibę firmy, sklep specjalistyczny, Gabinety lekarskie, szkołę, biura, ekspozycję i każdą nieuciążliwą usługę. Cena 6900 zł netto + vat + media (prąd, ogrzewanie, stałe koszty wspólne wspólnoty + podatek od nieruchomości). (Na zdjęciach rzuty parteru i piętra) Lokal stanowi głównie otwarta powierzchnię, można postawić ścianki działowe. Dużo miejsc parkingowych, w tym dwa deklarowane tylko dla tego lokalu.  Łatwy podjazd bezpośrednio pod lokal. Duże okna i doświetlenie. Ogrzewanie miejskie (zużycie wg GJ - bardzo korzystne). Polecam !!! 

Pośrednik nieruchomości

Proszę wprowadzić poprawne imię i nazwisko
Proszę wprowadzić poprawny numer telefonu
Proszę wprowadzić poprawny adres e-mail
Proszę zaznaczyć wymagane zgody
Rozwiąż równanie:
29 1
Niepoprawny wynik